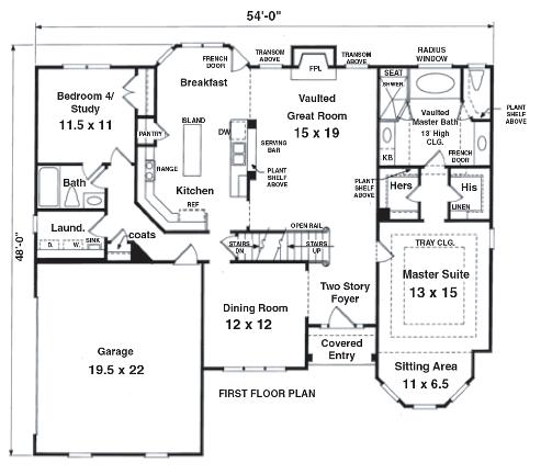
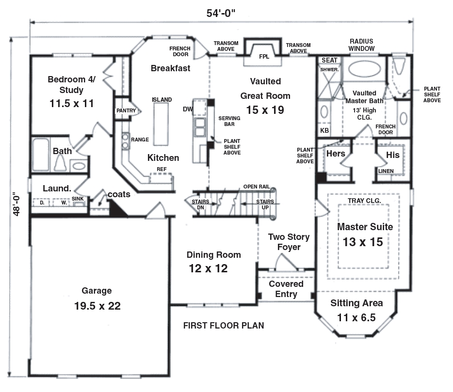
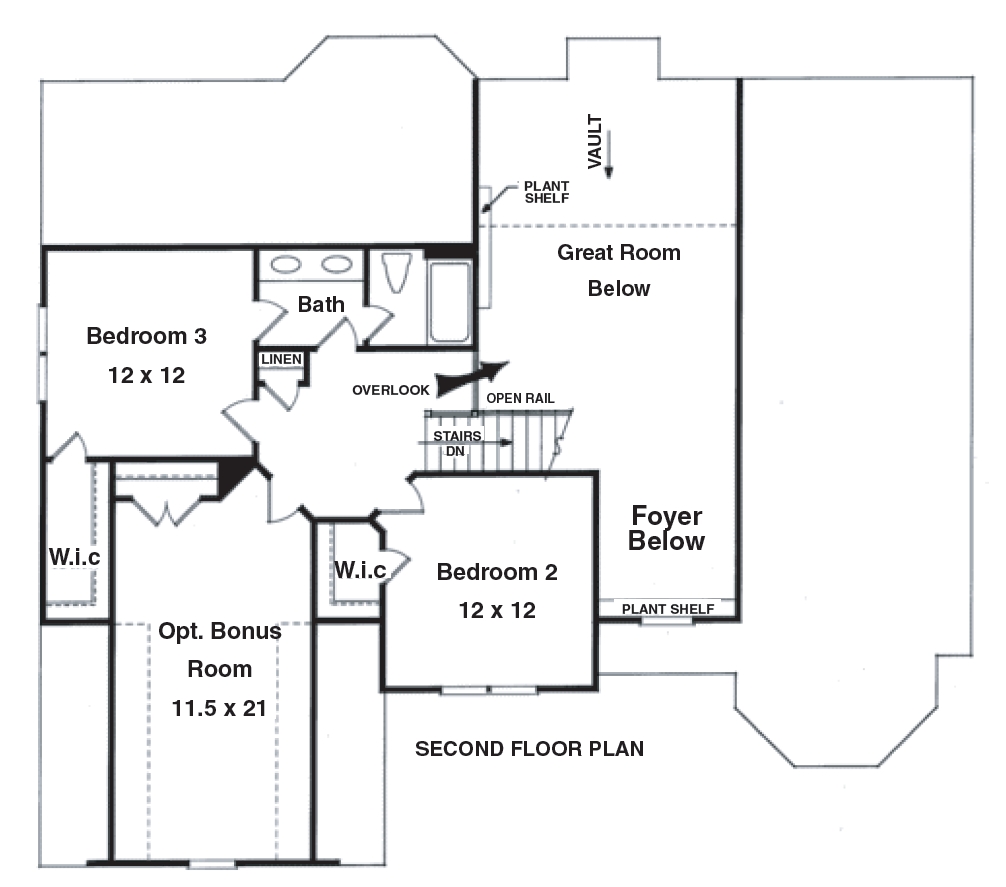
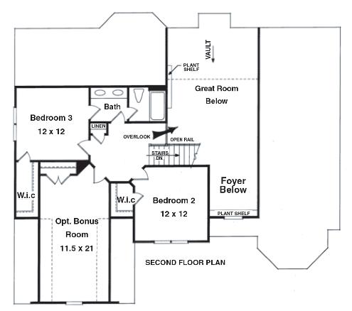
Floor Plan
We think you'll agree that The Sullivan's floor plan provides you a highly efficient and practical use of space. Take a look below at the floor plan (final construction details may vary slightly).
First floor (click image for larger view)
Second floor (click image for larger view)

